Nuovo appartamento in elegante residenza in zona comoda e tranquilla
Località : Claro
Venditaappartamenti
Località : Claro
Prezzo:CHF 590'000.00
Dettagli immobile
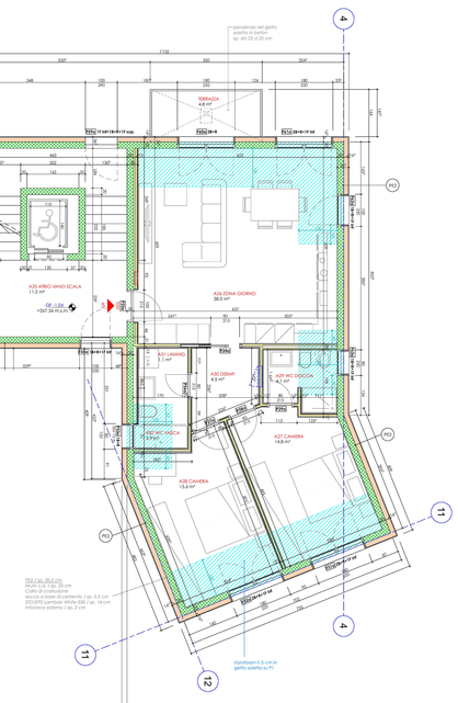
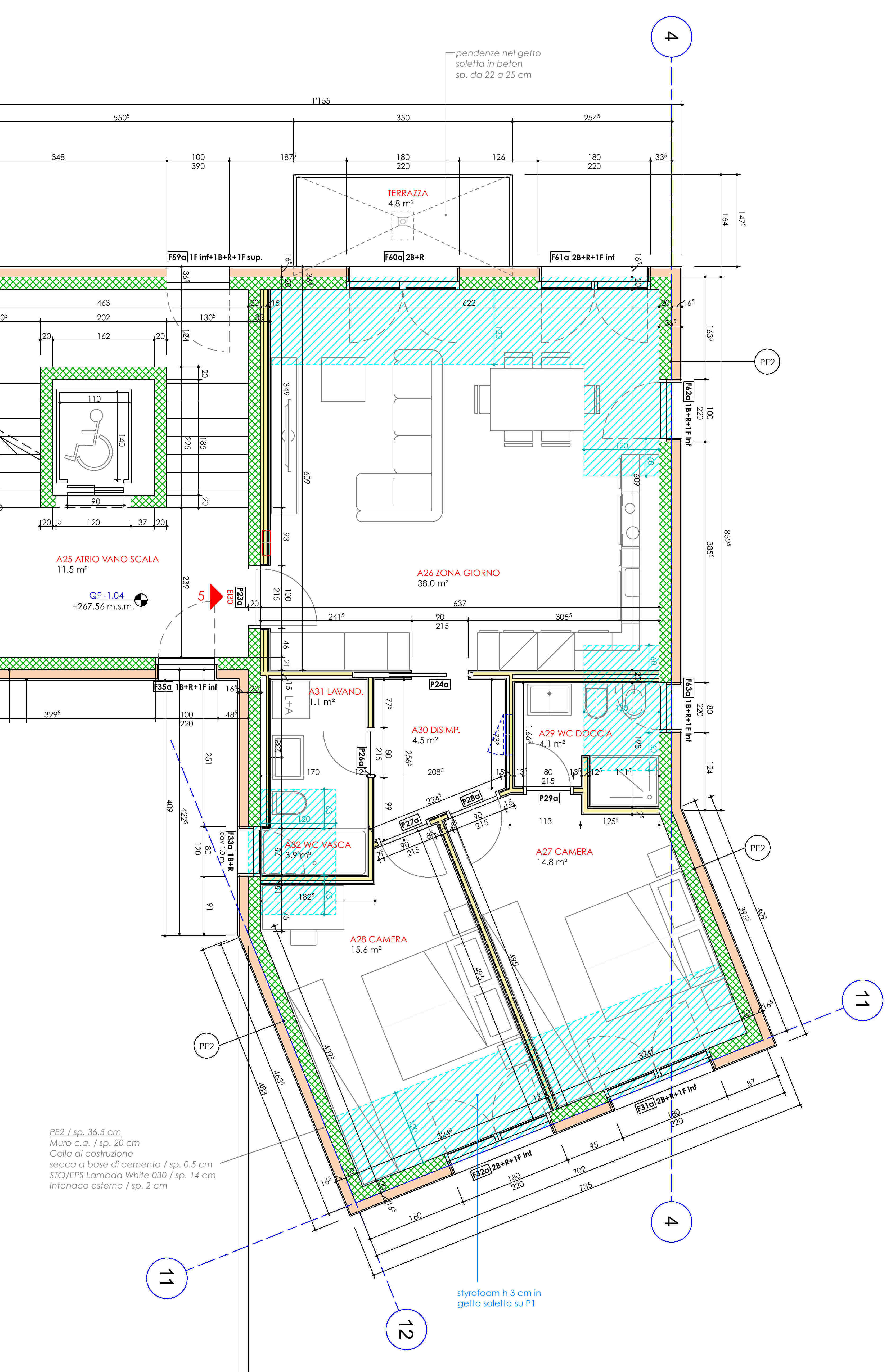
Numero locali : 3.5
Superficie : 85 m2
Piano appartamento: 1° piano
Numero appartamento : 5
indirizzo :A Murét
Disponibilità : Subito
Descrizione Immobile
La nuova ed elegante residenza sorge A Murét a Claro, zona ben servita e nelle immediate vicinanze dei principali servizi: Fermata dell’autopostale, negozi, studi medici, ecc.
La zona è molto richiesta per la comoda posizione che permette di raggiungerla in soli 5 minuti, provenendo dall’asse autostradale di Bellinzona Nord.
La residenza è composta da due distinti edifici, molto ben separati tra loro in modo da garantire la privacy tra le abitazioni.
Lo stabile A, nel quale si trovano i due appartamenti, è composto da 12 abitazioni di diverse metrature, distribuite su tre livelli abitabili.
L’edificio è stato realizzato in stile costruttivo tradizionale, con elementi in beton ed in muratura e con isolazione termica delle facciate.
Particolare attenzione è stata data agli aspetti energetici: Impianto a regolazione individuale per ogni locale, termopompa aria/acqua e distribuzione calore con serpentine a bassa temperatura posate a pavimento.
Gli appartamenti offrono spazi architettonici valorizzati sia dalla tipologia di distribuzione che dalla scelta personale delle rifiniture.
Lo spazio esterno è garantito dalle terrazze coperte, inserite in maniera ottimale in facciata in modo da conferire la massima discrezione possibile.
Al piano interrato trova spazio l’ampia autorimessa che gode di comodo accesso, allo stesso livello si trovano i depositi-cantina.
I posteggi esterni sono posti nella parte alta della residenza.
I posti auto assegnati alle abitazioni sono ben tre e sono compresi nel prezzo.














