TROVA la casa dei tuoi sogni

APRI LA ricerca

Nuovo appartamento in piccola palazzina immersa nel verde

Località : Bellinzona

Venditaappartamenti

Località : Bellinzona

Prezzo:CHF 430'000.00

Dettagli immobile

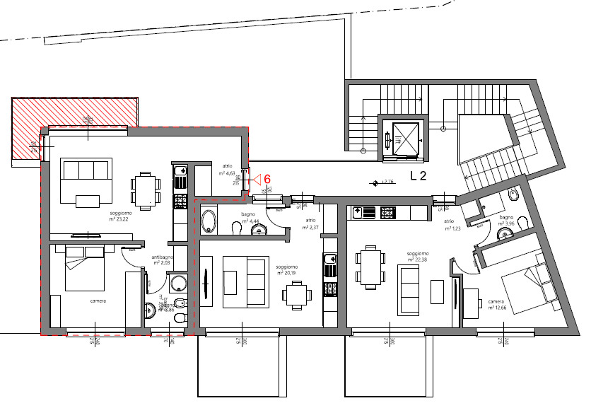
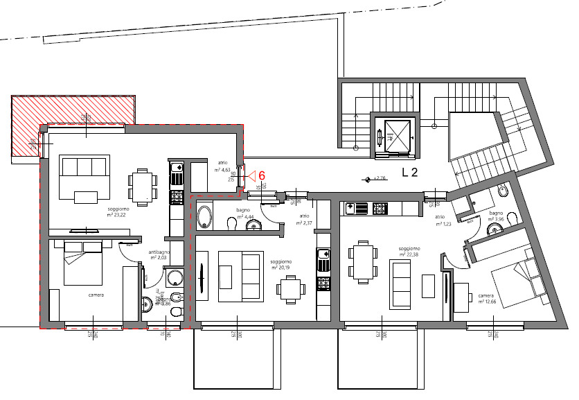
Numero locali : 2.5

Superficie : 59 m2

Terrazzo/e : 8 m2

Piano appartamento: 1° piano

Numero appartamento : 6

Trasporti : 300 m

Negozi : 300 m

indirizzo :Via Galbisio, Carasso

Disponibilità : Concordare

Descrizione Immobile

Nuova edificazione di una piccola e moderna palazzina, ubicata in zona residenziale tranquilla ed immersa nel verde.

La costruzione verrà realizzata nel massimo rispetto della natura, prevedendo dei terrazzamenti per la creazione dei giardini privati.

I pochi abitanti di questa elegante costruzione godono di un magnifico quadro verdeggiante, posto a pochi passi dalla città, inserito in un contesto edificatorio ben definito e circondato da aree non più edificabili.

Le soluzioni adottate mirano a fornire il comfort abitativo, uso di tecnologie all’avanguardia per il basso consumo energetico.

L’isolamento acustico e termico dei singoli appartamenti è garantito dall’utilizzo di materiali performanti.

Il piazzale e le scale esterne, realizzati in pietre naturali, integrano lo stabile alle caratteristiche peculiari del terreno.

La costruzione si compone di solo 7 unità abitative suddivise in appartamenti di 1 ½ locali e 2 ½ locali che risultano molto ambiti in ambito locativo.

Al piano seminterrato sono previsti 7 posti auto (4 coperti e 3 scoperti), le cantine ed il locale tecnico collegati ai piani dalla scala e dal comodo ascensore.

Al piano terra e al primo piano si trovano 3 appartamenti, un monolocale e due appartamenti di 2 ½ locali, con l’uscita diretta sul parco che costeggia il piccolo riale.

Le abitazioni godono di grandi aperture orientate verso il ruscello e si armonizzano molto bene con il territorio circostante.

L'appartamento 6 dispone di un posto auto coperto compreso nel prezzo.

La dinamicità delle forme viene elegantemente accentuata dalle geometrie a contorno dei balconi-terrazze, le peculiarità architettoniche conferiscono agli appartamenti un ottimo valore intrinseco.

I volumi sono ben articolati, netti ed in forte contrasto con l’ambiente circonstante in modo da enfatizzarlo ulteriormente; mentre il colore della casa è in armonia con i colori del bosco.

Nel parco che circonda l’elegante costruzione si trovano gradevoli spazi per lo svago ed il riposo all’ombra degli alberi.

* campi obligatori.
Please insert valid email address.
Richiesta informazioni Codice oggetto: 20768
INVIA SCHEDA A UN AMICO