TROVA la casa dei tuoi sogni

APRI LA ricerca

Nuovo elegante appartamento con giardino privato

Località : Camorino

Venditaappartamenti

Località : Camorino

Prezzo:CHF 560'000.00

Dettagli immobile

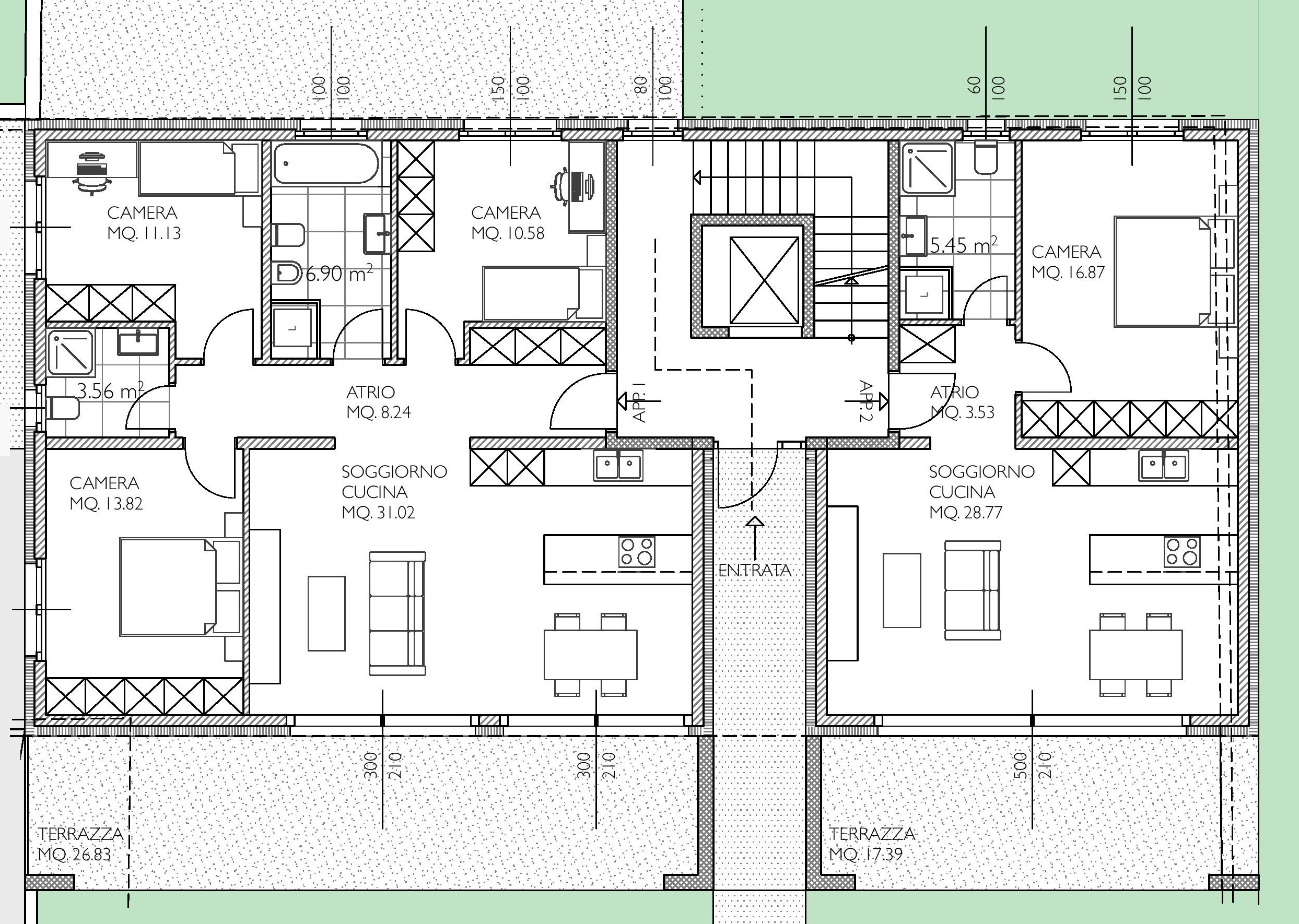
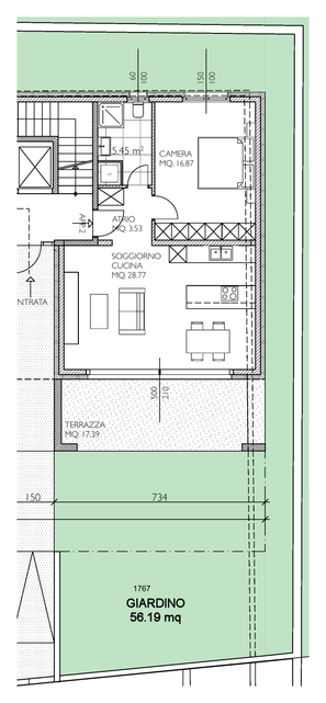
Numero locali : 2.5

Superficie : 84 m2

Terrazzo/e : 18 m2

Giardino : 56 m2

Piano appartamento: Piano Terreno

Numero appartamento : 2

indirizzo :In Busciurina

Disponibilità : Subito

Descrizione Immobile

La Residenza Vero appena ultimata sorge in zona molto tranquilla e ben soleggiata, in posizione comoda e strategica: dista solo un chilometro dal centro di Giubiasco e dall’uscita autostradale di Bellinzona-Sud.

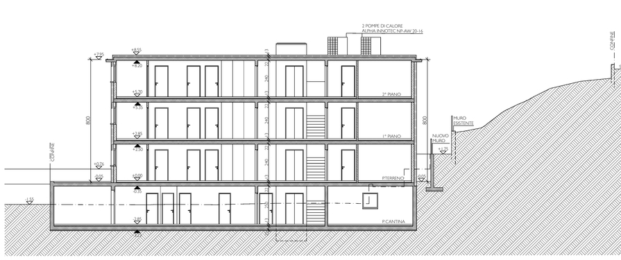
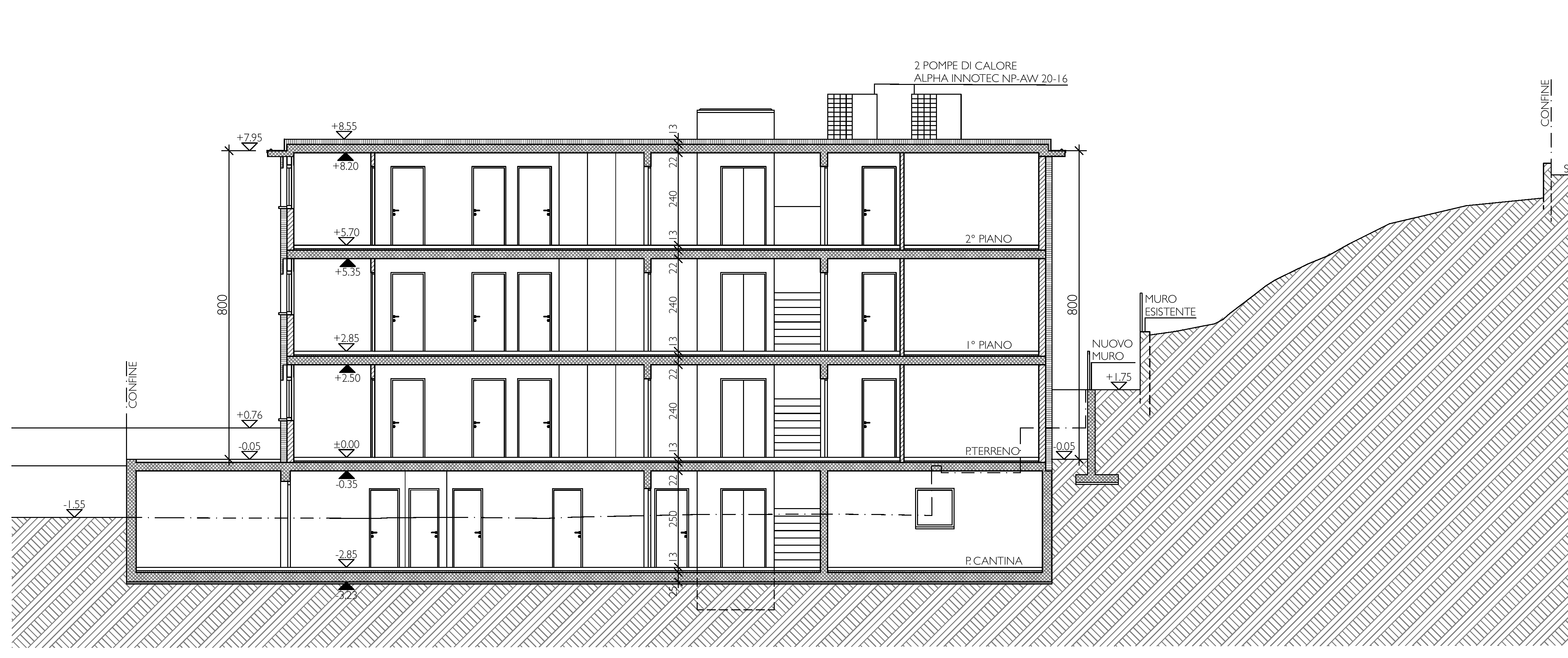
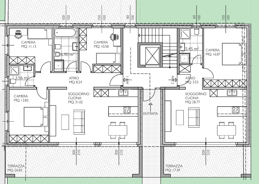
La residenza è composta da soli 6 appartamenti: 3 unità di 2 ½ locali e 3 unità di 4 ½ locali che sono distribuiti due per piano e ripartiti tra il piano terreno ed il secondo piano.

L’edificio verrà realizzato in stile costruttivo tradizionale, con elementi in beton e mattoni e con isolazione termica delle facciate con cappotto di 160 mm e serramenti con tripli vetri.

Particolare attenzione è stata data agli aspetti energetici: Termopompa per la produzione di calore, serpentine a bassa temperatura posate a pavimento per la sua distribuzione ed impianto fotovoltaico con pannelli solari posati sul tetto.

L’abitazione è libera sui tre lati, gli spazi architettonici sono valorizzati sia dalla tipologia di distribuzione che dalla scelta personale delle rifiniture.

L’illuminazione è garantita dalla posa di Spot ad incasso sia nella zona giorno che nei servizi.

Ogni abitazione dispone degli allacciamenti per la colonna lava-asciuga all’interno dell’appartamento, installazioni che saranno previste anche nel locale cantina.

Gli spazi esterni sono molto valorizzati e garantiti dai giardini privati e dalle grandi terrazze coperte.

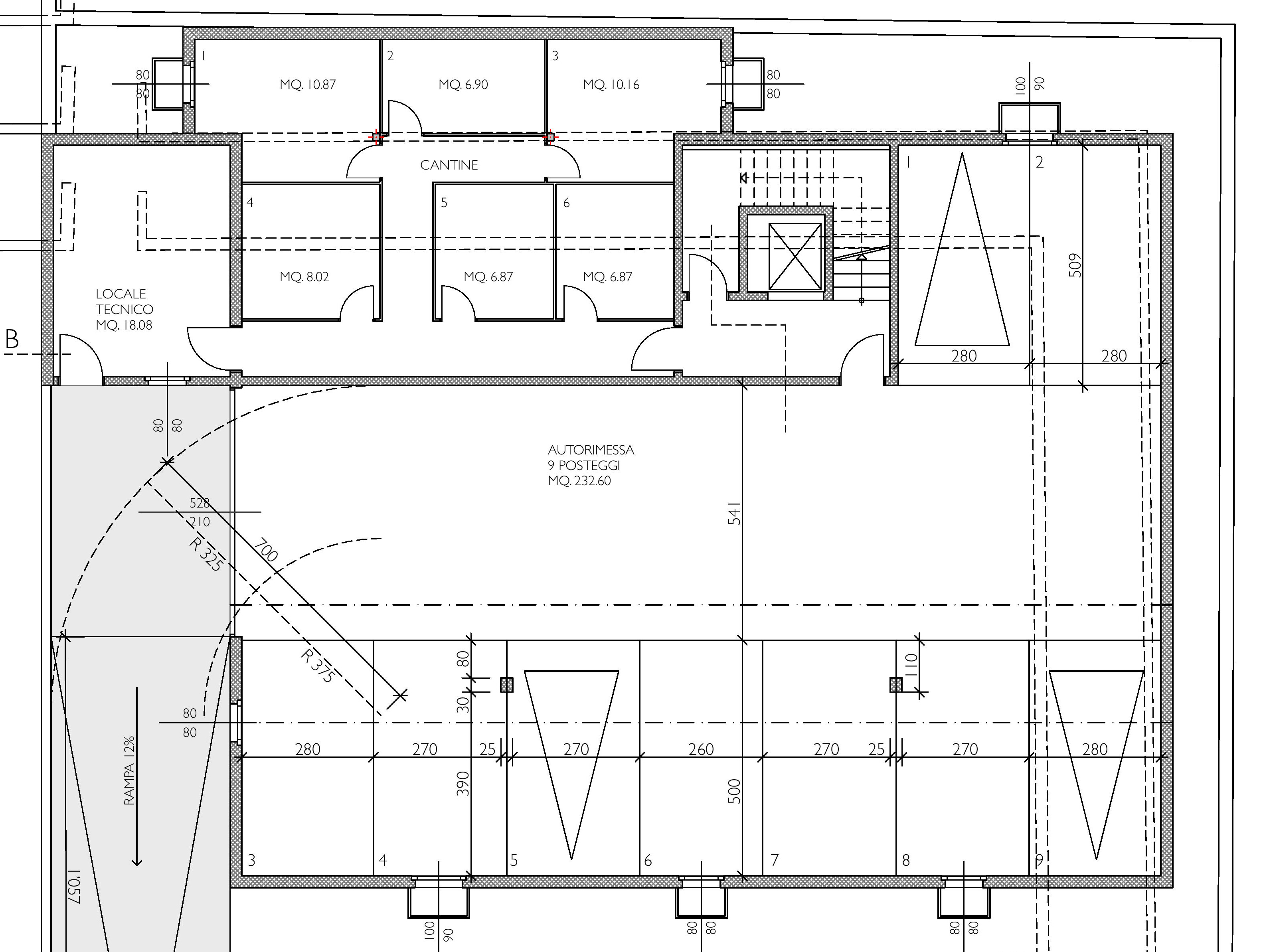
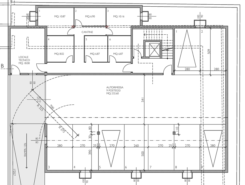
Al piano interrato, comodamente raggiungibile tramite ascensore, sono ubicate le cantine, il locale tecnico e l’autorimessa per nove posti auto.

Di fronte ai posti auto è presente l’alimentazione per le colonne di ricarica di alimentazione per auto elettriche.

* campi obligatori.
Please insert valid email address.
Richiesta informazioni Codice oggetto: 20716
INVIA SCHEDA A UN AMICO